某多层多功能厅楼盖计算书及图纸(ID:1202708)
查找相似图纸
截图
AI截图渲染
✨AI图片渲染
| # | 文件名称 | 文件大小 |
|---|---|---|
| 1 | 整体式楼盖施工图.dwg | 59.63K |
| 2 | 整体式楼盖肋梁施工图.dwg | 45.03K |
| 3 | 钢筋混凝土结构设计计算书.doc | 4.65M |
此图纸下载需要50金币
立即下载
发布者
辛奇迹
创作: 2480
粉丝: 10
加入时间:2023-03-15
模型信息
图纸ID:1202708
图纸格式:dwg
文件大小:275.54KB
所需金币:50
上传时间:2024-03-28 10:42:55
是否可编辑:可修改,包括参数
软件版本:AutoCAD 2004
标签
图纸简介
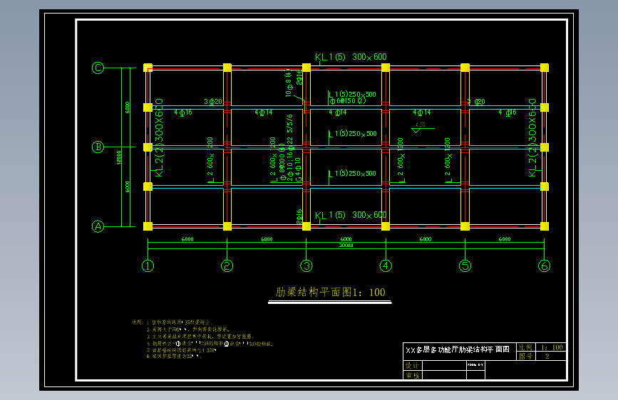
某多层多功能厅楼盖计算书及图纸,结构布置:采用双向板主次梁布置。
1.计算书:设计资料、楼板计算、次梁设计、主梁设计;
2.图纸:肋梁结构平面图、现浇楼盖楼板平面图。
版权说明
用户在本站上传的作品如侵犯到您的权益,请与本站管理员联系删除。用户在本站下载的原创作品,只拥有作品的使用权,著作权归原作者所有,未经合法授权,用户不得以任何形式发布、传播、复制、转售该作品。
AI渲染-将平面图渲染为真实效果图
原图
渲染图
正在渲染中,请稍候...





0.png)
0.png)