某时代广场综合楼通风排烟设计图(ID:1341155)
# | 文件名称 | 文件大小 |
---|---|---|
1 | 17150402996609.zip | 770.22K |
2 | 某时代广场1综合楼通风排烟设计图.dwg | 991.63K |
此图纸下载需要40金币
立即下载
发布者
辛奇迹
创作: 2477
粉丝: 8
加入时间:2023-03-15

模型信息
图纸格式:dwg
文件大小:788.71KB
所需金币:40
上传时间:2024-05-07 08:05:18
是否可编辑:可修改,包括参数
版本:AutoCAD 2007
标签
图纸简介
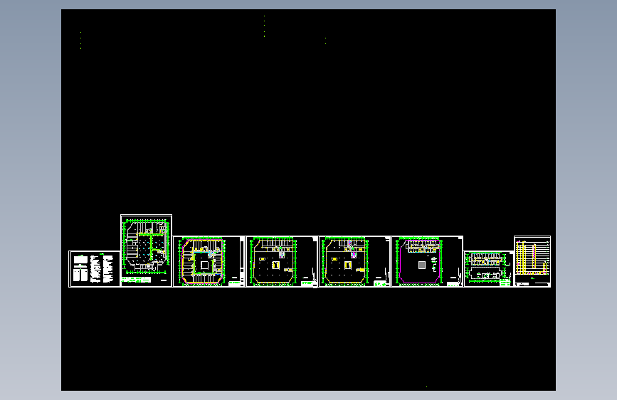
本工程为XX时代广场1#综合楼,建筑面积为24000平方米;本设计包括楼内的通风及防排烟设计。
本工程地下车库设置机械排烟兼排风系统,防烟楼梯间、防烟楼梯间前室、消防电梯前室设置加压送风系统,地下层设置了补风系统。
版权说明
用户在本站上传的作品如侵犯到您的权益,请与本站管理员联系删除。用户在本站下载的原创作品,只拥有作品的使用权,著作权归原作者所有,未经合法授权,用户不得以任何形式发布、传播、复制、转售该作品。
作者其它图纸 查看更多