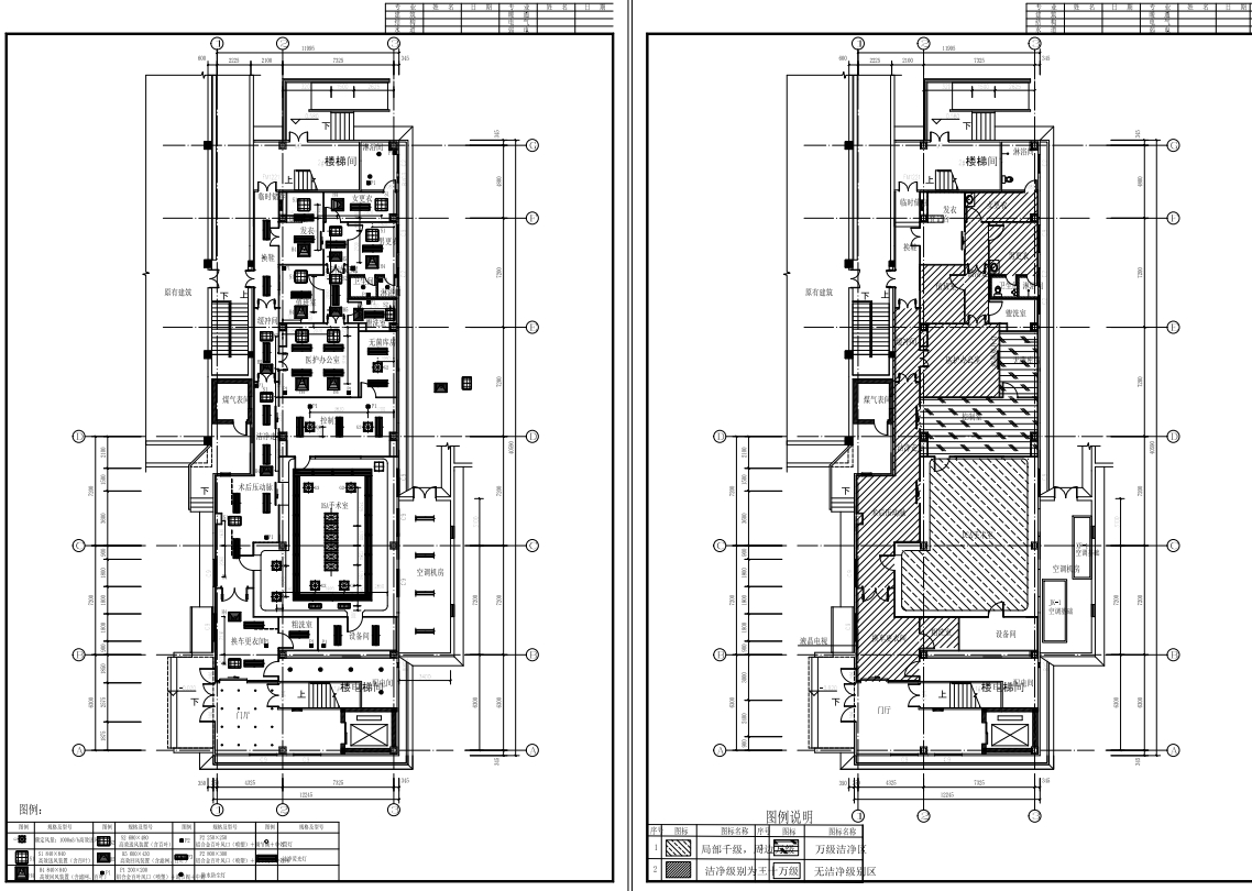
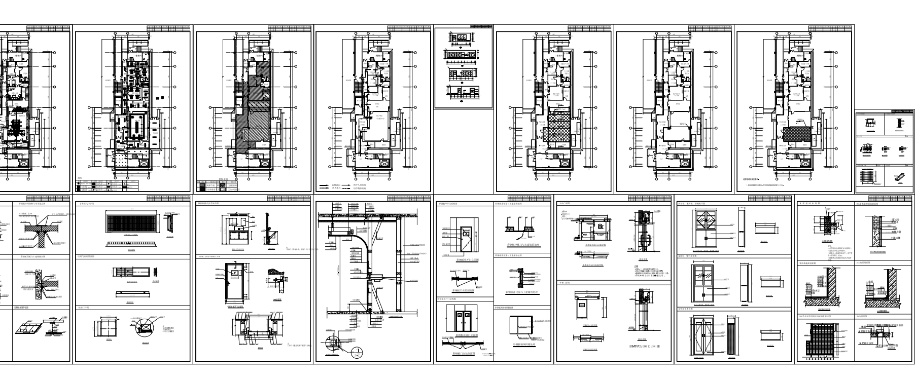
M2175-DSA手术室施工图设计(ID:1580958)
截图
AI截图渲染
✨AI图片渲染
| # | 文件名称 | 文件大小 |
|---|---|---|
| 1 | 17263206715942.zip | 3.14M |
| 2 | 0微信截图_20231110184720.png | 503.07K |
| 3 | 0微信截图_20231110184734.png | 274.33K |
| 4 | 0微信截图_20231110184741.png | 302.01K |
| 5 | DSA手术室施工图设计MF596947.dwg | 6.29M |
此图纸下载需要49金币
立即下载
发布者
活力的皮带
创作: 97639
粉丝: 116
加入时间:2023-07-26
模型信息
图纸ID:1580958
图纸格式:dwg
文件大小:3.22M
所需金币:49
上传时间:2024-09-14 21:31:12
是否可编辑:可修改,包括参数
软件版本:AutoCAD
标签
图纸简介
版权说明
用户在本站上传的作品如侵犯到您的权益,请与本站管理员联系删除。用户在本站下载的原创作品,只拥有作品的使用权,著作权归原作者所有,未经合法授权,用户不得以任何形式发布、传播、复制、转售该作品。
AI渲染-将平面图渲染为真实效果图
原图
渲染图
正在渲染中,请稍候...




