xxx人民医院污水站竣工图(ID:1912796)
# | 文件名称 | 文件大小 |
---|---|---|
1 | 1741828708700.zip | 4.52M |
2 | xxx人民医院污水站竣工图.dwg | 5.87M |
此图纸下载需要230金币
立即下载
发布者
环保-就不取名
创作: 21
粉丝: 4
加入时间:2023-03-24

模型信息
图纸格式:dwg
文件大小:4.63M
所需金币:230
上传时间:2025-03-13 09:18:29
是否可编辑:可修改,包括参数
版本:AutoCAD 2007
标签
医院
医院污水
医院废水
人民医院
图纸简介
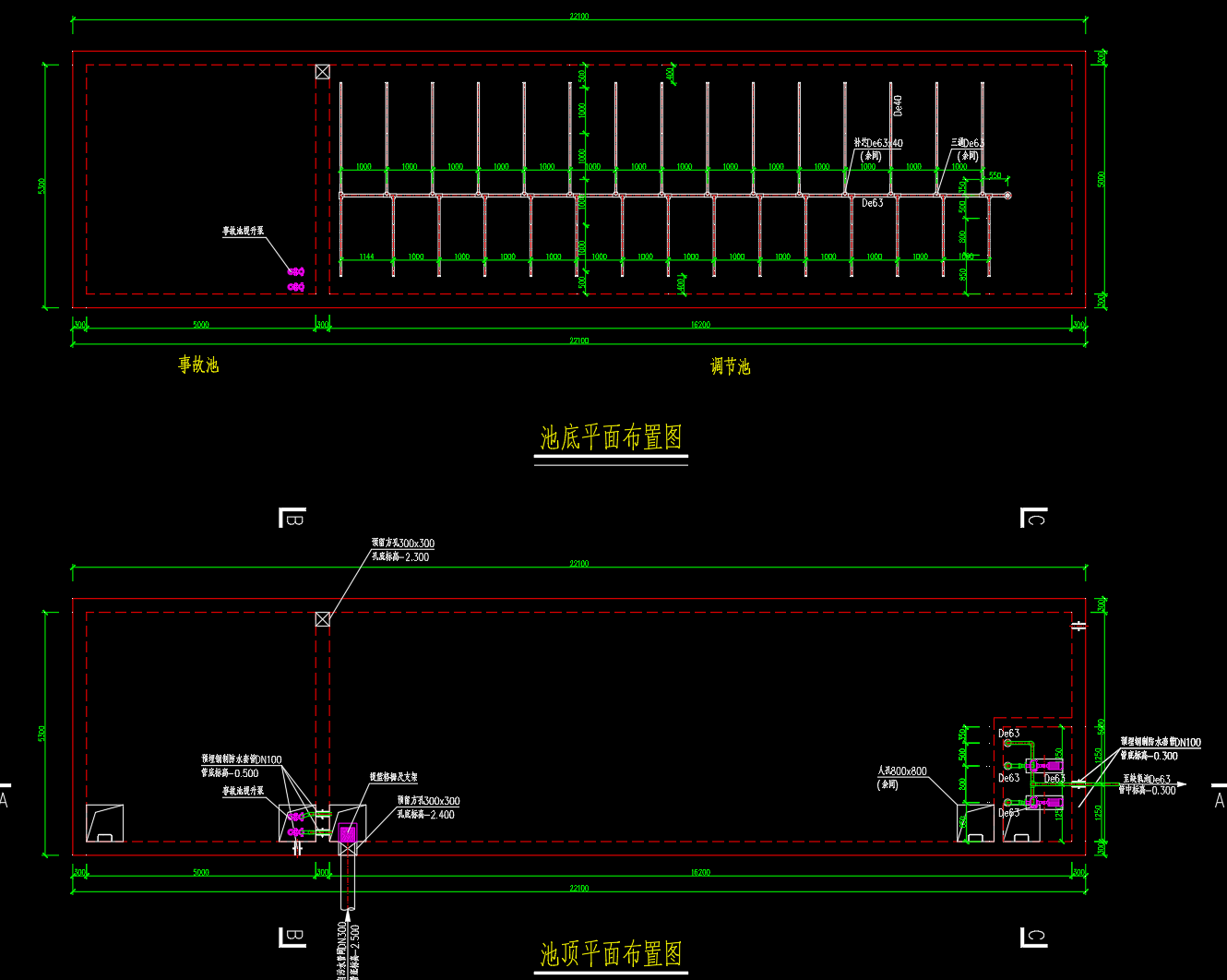
设计规模:300t/d。出水标准:纳管排放标准。
工艺流程:调节池+缺氧池+好氧池+二沉池+消毒池+标准排放口。
图纸较为详细,亲测可达标。稍微修改一下就能当工艺图使用。
此污水站主要采用的是碳钢一体化设备。调节池采用的是钢筋混凝土。含详细的设备清单。
版权说明
用户在本站上传的作品如侵犯到您的权益,请与本站管理员联系删除。用户在本站下载的原创作品,只拥有作品的使用权,著作权归原作者所有,未经合法授权,用户不得以任何形式发布、传播、复制、转售该作品。
作者其它图纸 查看更多