护栏CAD图纸(ID:2622531)
# | 文件名称 | 文件大小 |
---|---|---|
1 | 17577428823987.zip | 239.70K |
2 | 护栏CAD图纸.dwg | 323.39K |
此图纸下载需要45金币
立即下载
发布者
安详的橘子
创作: 525
粉丝: 17
加入时间:2024-05-23

模型信息
图纸格式:dwg
文件大小:245.46KB
所需金币:45
上传时间:2025-09-13 13:54:43
是否可编辑:可修改,包括参数
版本:AutoCAD 2013
标签
图纸简介
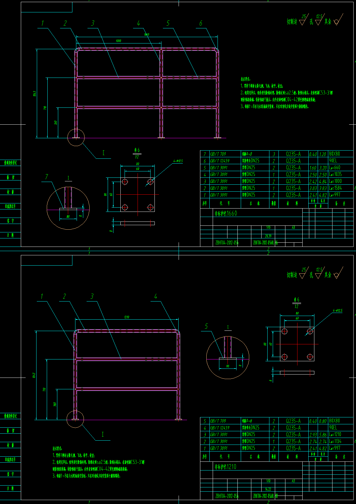
此附件为护栏cad详细设计图纸,此护栏为焊接件,按照国标进行设计,焊后打磨焊缝,一般主要用在钢平台上方四周,防止人员掉落,是成熟产品,欢迎大家下载
版权说明
用户在本站上传的作品如侵犯到您的权益,请与本站管理员联系删除。用户在本站下载的原创作品,只拥有作品的使用权,著作权归原作者所有,未经合法授权,用户不得以任何形式发布、传播、复制、转售该作品。