年总产45万吨环氧乙烷乙二醇项目4.乙二醇精制车间CAD图纸(ID:2690068)
# | 文件名称 | 文件大小 |
---|---|---|
1 | 17592251086606.zip | 997.29K |
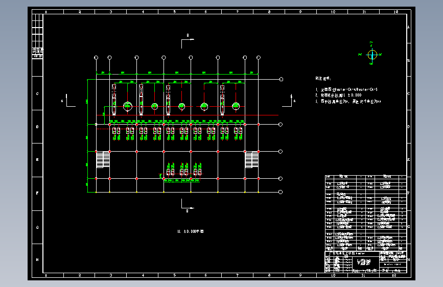
2 | EL0.000平面.dwg | 312.58K |
3 | EL12.000平面.dwg | 298.53K |
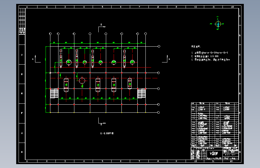
4 | EL6.000平面.dwg | 301.12K |
5 | 乙二醇精制车间A-A立面图.dwg | 306.66K |
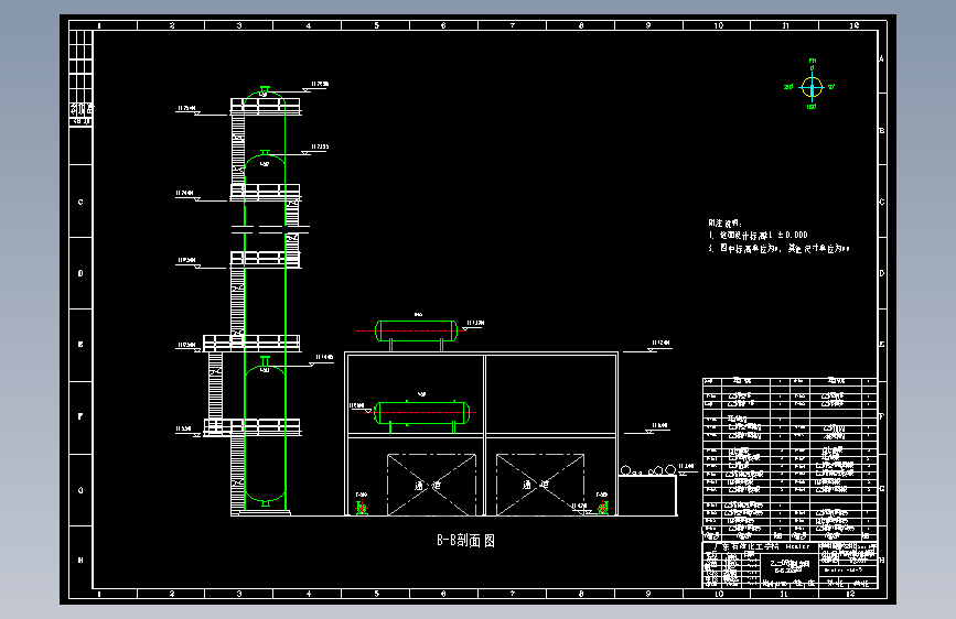
6 | 乙二醇精制车间B-B立面图.dwg | 111.47K |
此图纸下载需要100金币
立即下载
发布者
静
创作: 9855
粉丝: 6
加入时间:2025-05-27

模型信息
图纸格式:dwg
文件大小:1021.23KB
所需金币:100
上传时间:2025-09-30 17:38:30
是否可编辑:可修改,包括参数
版本:AutoCAD 2004
标签
图纸简介
版权说明
用户在本站上传的作品如侵犯到您的权益,请与本站管理员联系删除。用户在本站下载的原创作品,只拥有作品的使用权,著作权归原作者所有,未经合法授权,用户不得以任何形式发布、传播、复制、转售该作品。
作者其它图纸 查看更多
猜你喜欢