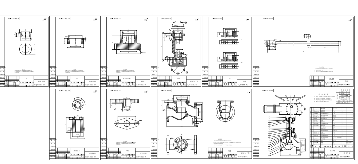
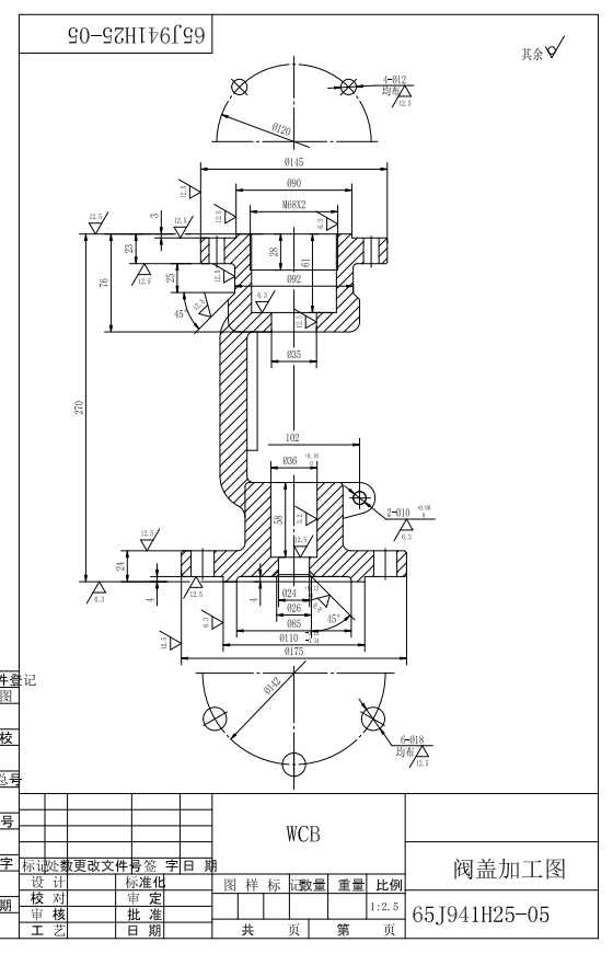
电动截止阀(ID:996985)
# | 文件名称 | 文件大小 |
---|---|---|
1 | 17094908525805.zip | 1.28M |
2 | 微信截图_20231111083305.png | 282.48K |
3 | 微信截图_20231111083317.png | 311.91K |
4 | 微信截图_20231111083326.png | 111.20K |
5 | 65J941H16C.dwg | 725.09K |
此图纸下载需要48金币
立即下载
发布者
傲娇的康乃馨
创作: 6985
粉丝: 382
加入时间:2023-10-21

模型信息
图纸格式:dwg
文件大小:1.31M
所需金币:48
上传时间:2024-03-04 02:34:12
是否可编辑:可修改,包括参数
版本:AutoCAD 2007
标签
图纸简介
版权说明
用户在本站上传的作品如侵犯到您的权益,请与本站管理员联系删除。用户在本站下载的原创作品,只拥有作品的使用权,著作权归原作者所有,未经合法授权,用户不得以任何形式发布、传播、复制、转售该作品。
作者其它图纸 查看更多
猜你喜欢