某科创智谷园区及配套建设项目-成套配电箱深化图(ID:2900533)
截图
AI截图渲染
✨AI图片渲染
| # | 文件名称 | 文件大小 |
|---|---|---|
| 1 | 17669120014870.zip | 1.58M |
| 2 | 2025.08.25-共18台-某科创智谷园区及配套建设项目-成套配电箱深化图.dwg | 1.05M |
| 3 | 1.png | 123.37K |
| 4 | 2.png | 102.02K |
| 5 | 3.png | 99.69K |
| 6 | 4.png | 75.24K |
| 7 | 5.png | 97.86K |
| 8 | 6.png | 57.21K |
| 9 | 封面.png | 87.95K |
此图纸下载需要50金币
立即下载
发布者
清爽的摩托
创作: 41
粉丝: 0
加入时间:2025-12-27
模型信息
图纸格式:dwg
文件大小:1.62M
所需金币:50
上传时间:2025-12-28 16:53:22
是否可编辑:可修改,包括参数
版本:AutoCAD 2007
标签
成套电气
配电箱
动力柜
深化图
箱体图
图纸简介
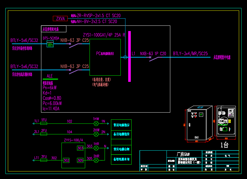
该图纸是某科创智谷园区及配套建设项目-成套配电箱深化图,共18台。根据客户的原图纸,按对应的开关品牌排布,设计出配电箱箱体图,供钣金厂生产箱子用。图纸包含动力柜、基业箱、水泵控制箱等等。有双电源原理图、稳压泵控制原理图、分励脱扣原理图等,还有对应开关的模型图章,供下载参考学习使用。
版权说明
用户在本站上传的作品如侵犯到您的权益,请与本站管理员联系删除。用户在本站下载的原创作品,只拥有作品的使用权,著作权归原作者所有,未经合法授权,用户不得以任何形式发布、传播、复制、转售该作品。
AI渲染-将平面图渲染为真实效果图
原图
渲染图
正在渲染中,请稍候...







0.png)






